GOOD ARCHITECTURE, PC
Menu
Portfolio
Blog
Contact
Go to the Full Site
<
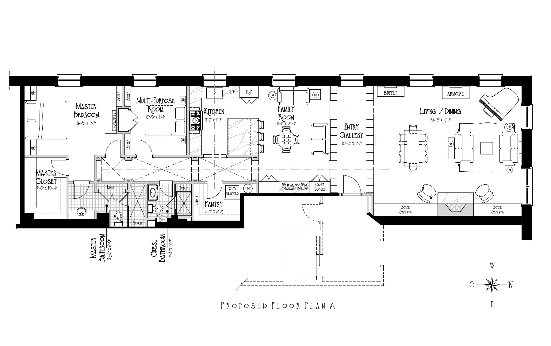
Federal Hill Apartment
Baltimore, Maryland
Go to
Details